13 730 000 Р 168 900 $ или 145 500

Информация о квартире

58 м2
Площадь
23 м2
Жилая
15 м2
Кухня
2
Комнаты
8
Этаж
12
Этажность
Развернуть
Агент
+7 (967) 381-17-73
Начать чат с агентом

2-комнатная квартира: Новый Уренгой, район Северная Жилая Часть, ...

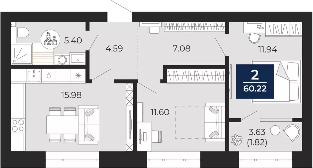
Apт.2484178. Продается двухкомнатная квартира с предчистовой отделкой в ЖК Преображенский на 8 этаже. Общая площадь: 58.41 кв.м., жилая: 23.54 кв.м., площадь просторной кухни-столовой: 15.98 кв.м. Комнаты изолированные, все окна выходят на одну сторону. В квартире одна лоджия, один совмещенный санузел. Высота потолков 2.7 м. Дом монолитный, многоподъездный, переменной этажности, от 8 до 12 этажей. Квартира находится в 5-й секции высотой 10 этажей в корпусе ГП-82. На этаже 7 квартир. В подъезде 1 пассажирский и 1 грузовой лифт. Окончание строительства - 3 квартал 2026 года. Оформление сделки по договору долевого участия. Квартал будет расположен в микрорайоне Славянский на пересечении улиц Мира и 70-летия Октября. Престижный район, собственный парк, вся необходимая для жизни, учёбы и работы инфраструктура — новая школа с бассейном и кванториумом, новый детский сад, поликлиника, спорткомплекс, магазины и др.Чтобы в квартирах было как можно больше свободного пространства, мы предусмотрели индивидуальные кладовые на цокольном этаже.Оставляйте коляски и сезонный спортинвентарь после прогулок здесь — удобно для вас и чисто для квартиры.В подземный паркинг можно спуститься на лифте прямо с квартирной площадки.

Читать полностью
    Позвонить Написать
    13 730 000 Р168 900 $ или 145 500
    Агент
    +7 (967) 381-17-73
    Начать чат с агентом
    Похожие предложения в Новом Уренгое
    2-к кв. Ямало-Ненецкий АО, Новый Уренгой ул. Газовиков (80.0 м) - Фото 1
    2-к кв. Ямало-Ненецкий АО, Новый Уренгой ул. Газовиков (80.0 м) - Фото 2
    2-комнатная квартира, общая площадь 80м²

    Продаётся 2-комнатная квартира в строящемся доме (2 этап, 3 подъезд), срок сдачи: II-кв. 2028, общей площадью 80 кв.м., на 5 этаже. Клубный жилой комплекс с прилегающей спортивно-рекреационной зоной и апарт-отелем от Специализированного застройщика УренгойГазСтройИнвест...
    • 80 м²
    • 2-ком
    • 5/11 эт.
    • блочный
    14 560 000 Р
    Агент
    +7 (994) Показать номер
    Посмотреть контакты
    2-к кв. Ямало-Ненецкий АО, Новый Уренгой ул. Газовиков (77.0 м) - Фото 1
    2-к кв. Ямало-Ненецкий АО, Новый Уренгой ул. Газовиков (77.0 м) - Фото 2
    2-комнатная квартира, общая площадь 77м²

    Продаётся 2-комнатная квартира в строящемся доме (2 этап, 3 подъезд), срок сдачи: II-кв. 2028, общей площадью 77 кв.м., на 5 этаже. Клубный жилой комплекс с прилегающей спортивно-рекреационной зоной и апарт-отелем от Специализированного застройщика УренгойГазСтройИнвест...
    • 77 м²
    • 2-ком
    • 5/11 эт.
    • блочный
    14 014 000 Р
    Агент
    +7 (994) Показать номер
    Посмотреть контакты
    2-к кв. Ямало-Ненецкий АО, Новый Уренгой ул. Газовиков (80.0 м) - Фото 1
    2-к кв. Ямало-Ненецкий АО, Новый Уренгой ул. Газовиков (80.0 м) - Фото 2
    2-комнатная квартира, общая площадь 80м²

    Продаётся 2-комнатная квартира в строящемся доме (2 этап, 3 подъезд), срок сдачи: II-кв. 2028, общей площадью 80 кв.м., на 2 этаже. Клубный жилой комплекс с прилегающей спортивно-рекреационной зоной и апарт-отелем от Специализированного застройщика УренгойГазСтройИнвест...
    • 80 м²
    • 2-ком
    • 2/11 эт.
    • блочный
    14 560 000 Р
    Агент
    +7 (994) Показать номер
    Посмотреть контакты
    2-к кв. Ямало-Ненецкий АО, Новый Уренгой ул. Газовиков (77.0 м) - Фото 1
    2-к кв. Ямало-Ненецкий АО, Новый Уренгой ул. Газовиков (77.0 м) - Фото 2
    2-комнатная квартира, общая площадь 77м²

    Продаётся 2-комнатная квартира в строящемся доме (2 этап, 3 подъезд), срок сдачи: II-кв. 2028, общей площадью 77 кв.м., на 1 этаже. Клубный жилой комплекс с прилегающей спортивно-рекреационной зоной и апарт-отелем от Специализированного застройщика УренгойГазСтройИнвест...
    • 77 м²
    • 2-ком
    • 1/11 эт.
    • блочный
    14 014 000 Р
    Агент
    +7 (994) Показать номер
    Посмотреть контакты
    2-к кв. Ямало-Ненецкий АО, Новый Уренгой ул. Газовиков (80.0 м) - Фото 1
    2-к кв. Ямало-Ненецкий АО, Новый Уренгой ул. Газовиков (80.0 м) - Фото 2
    2-комнатная квартира, общая площадь 80м²

    Продаётся 2-комнатная квартира в строящемся доме (2 этап, 3 подъезд), срок сдачи: II-кв. 2028, общей площадью 80 кв.м., на 11 этаже. Клубный жилой комплекс с прилегающей спортивно-рекреационной зоной и апарт-отелем от Специализированного застройщика ...
    • 80 м²
    • 2-ком
    • 11/11 эт.
    • блочный
    14 560 000 Р
    Агент
    +7 (994) Показать номер
    Посмотреть контакты

    Не нашли подходящего объявления?

    Оставьте заявку, и наши риэлторы подберут квартиру в новостройке в районе Нового Уренгоя

    (0)