10 580 000 Р 130 700 $ или 112 500

Информация о квартире

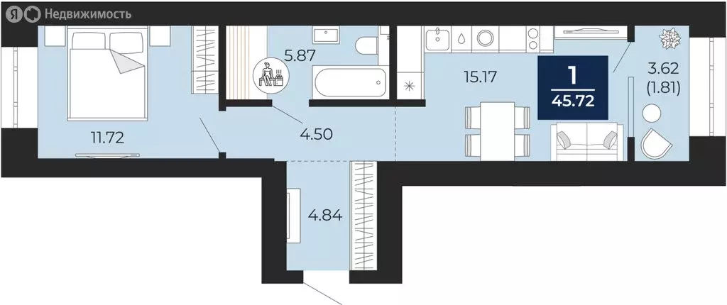
43 м2
Площадь
11 м2
Жилая
15 м2
Кухня
1
Комната
4
Этаж
12
Этажность
Развернуть
Агент
+7 (967) 381-17-73
Начать чат с агентом

1-комнатная квартира: Новый Уренгой, район Северная Жилая Часть, ...

Apт.2484137. 1-комн. квартира от застройщика с предчистовой отделкой в ЖК Преображенский на 4 этаже. Общая площадь: 43.91 кв.м., жилая: 11.72 кв.м., площадь просторной кухни-столовой: 15.17 кв.м. Квартира - распашонка, без проходных комнат, окна выходят на paзные стороны дома. В квартире один балкон, один совмещенный санузел. Высота потолков 2.7 м. Дом монолитный, многоподъездный, переменной этажности, от 8 до 12 этажей. Квартира находится в 4-й секции высотой 12 этажей в корпусе ГП-82. На этаже 6 квартир. В подъезде 1 пассажирский и 1 грузовой лифт. Окончание строительства - 3 квартал 2026 года. Оформление сделки по договору долевого участия. Квартал будет расположен в микрорайоне Славянский на пересечении улиц Мира и 70-летия Октября. Престижный район, собственный парк, вся необходимая для жизни, учёбы и работы инфраструктура — новая школа с бассейном и кванториумом, новый детский сад, поликлиника, спорткомплекс, магазины и др.Чтобы в квартирах было как можно больше свободного пространства, мы предусмотрели индивидуальные кладовые на цокольном этаже.Оставляйте коляски и сезонный спортинвентарь после прогулок здесь — удобно для вас и чисто для квартиры.В подземный паркинг можно спуститься на лифте прямо с квартирной площадки.

Читать полностью
    Позвонить Написать
    10 580 000 Р130 700 $ или 112 500
    Агент
    +7 (967) 381-17-73
    Начать чат с агентом
    Похожие предложения в Новом Уренгое
    1-к кв. Ямало-Ненецкий АО, Новый Уренгой Созидателей мкр, Атмосфера. ... - Фото 1
    1-к кв. Ямало-Ненецкий АО, Новый Уренгой Созидателей мкр, Атмосфера. ... - Фото 2
    1-комнатная квартира, общая площадь 46м², жилая 12м², кухня 20м²

    Открытие продаж третьей очереди жилого квартала Атмосфера Просторные квартиры с видом на озеро МолодежноеОднокомнатные от 38 до 46 м2Двухкомнатные от 57 до 79 м2Трехкомнатные от 80 до 100 м2 Квартал находится рядом с озером Молодежное, на пересечении...
    • 46 м²
    • 1-ком
    • 3/6 эт.
    11 136 315 Р
    Агент
    +7 (994) Показать номер
    Посмотреть контакты
    1-к кв. Ямало-Ненецкий АО, Новый Уренгой Созидателей мкр, Атмосфера. ... - Фото 1
    1-к кв. Ямало-Ненецкий АО, Новый Уренгой Созидателей мкр, Атмосфера. ... - Фото 2
    1-комнатная квартира, общая площадь 46м², жилая 12м², кухня 20м²

    Открытие продаж третьей очереди жилого квартала Атмосфера Просторные квартиры с видом на озеро МолодежноеОднокомнатные от 38 до 46 м2Двухкомнатные от 57 до 79 м2Трехкомнатные от 80 до 100 м2 Квартал находится рядом с озером Молодежное, на пересечении...
    • 46 м²
    • 1-ком
    • 3/6 эт.
    11 136 315 Р
    Агент
    +7 (994) Показать номер
    Посмотреть контакты
    1-к кв. Ямало-Ненецкий АО, Новый Уренгой Созидателей мкр, Атмосфера. ... - Фото 1
    1-к кв. Ямало-Ненецкий АО, Новый Уренгой Созидателей мкр, Атмосфера. ... - Фото 2
    1-комнатная квартира, общая площадь 41м², жилая 15м², кухня 15м²

    Открытие продаж третьей очереди жилого квартала Атмосфера Просторные квартиры с видом на озеро МолодежноеОднокомнатные от 38 до 46 м2Двухкомнатные от 57 до 79 м2Трехкомнатные от 80 до 100 м2 Квартал находится рядом с озером Молодежное, на пересечении...
    • 41 м²
    • 1-ком
    • 3/6 эт.
    10 702 715 Р
    Агент
    +7 (994) Показать номер
    Посмотреть контакты
    1-к кв. Ямало-Ненецкий АО, Новый Уренгой Созидателей мкр, Атмосфера. ... - Фото 1
    1-к кв. Ямало-Ненецкий АО, Новый Уренгой Созидателей мкр, Атмосфера. ... - Фото 2
    1-комнатная квартира, общая площадь 46м², жилая 12м², кухня 20м²

    Открытие продаж третьей очереди жилого квартала Атмосфера Просторные квартиры с видом на озеро Молодежное Однокомнатные от 38 до 46 м2 Двухкомнатные от 57 до 79 м2 Трехкомнатные от 80 до 100 м2Квартал находится рядом с озером Молодежное, на пересечении...
    • 46 м²
    • 1-ком
    • 3/6 эт.
    • кирпичный
    10 462 545 Р
    Агент
    +7 (994) Показать номер
    Посмотреть контакты
    1-к кв. Ямало-Ненецкий АО, Новый Уренгой Созидателей мкр, Атмосфера. ... - Фото 1
    1-к кв. Ямало-Ненецкий АО, Новый Уренгой Созидателей мкр, Атмосфера. ... - Фото 2
    1-комнатная квартира, общая площадь 46м², жилая 12м², кухня 20м²

    Открытие продаж третьей очереди жилого квартала Атмосфера Просторные квартиры с видом на озеро Молодежное Однокомнатные от 38 до 46 м2 Двухкомнатные от 57 до 79 м2 Трехкомнатные от 80 до 100 м2Квартал находится рядом с озером Молодежное, на пересечении...
    • 46 м²
    • 1-ком
    • 2/6 эт.
    • кирпичный
    11 539 752 Р
    Агент
    +7 (994) Показать номер
    Посмотреть контакты

    Не нашли подходящего объявления?

    Оставьте заявку, и наши риэлторы подберут квартиру в новостройке в районе Нового Уренгоя

    (0)