450 000 Р 5 790 $ или 4 990

Информация об помещении

цоколь
Этаж

Состояние и оснащение

Количество этажей
3
Развернуть
Агент
+7 (912) 073-05-67
Начать чат с агентом

Помещение свободного назначения в Ямало-Ненецкий АО, Ноябрьск ул. ...

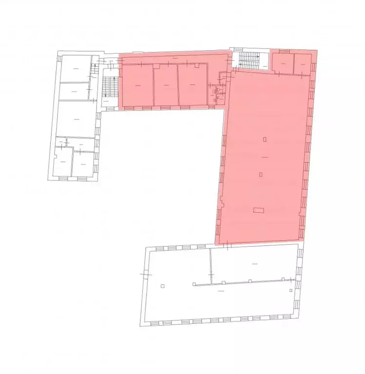
Сдаётся коммерческая площадь свободного назначения, расположенная в жилом здание в цокольном этаже. Общая площадь помещения 360м2. Здание расположено, в развитом районе. На первой линии с удобным расположением. Расположение здания имеет большой коммерческий потенциал. Есть свой отдельный вход и удобный подъезд. Помещение идеально подойдёт под сетевой магазин или супермаркет.Гарантируем полную проверку документов и подготовку сделки. Код пользователя: 111510Номер в базе: 9672333

Читать полностью
    Позвонить Написать
    450 000 Р5 790 $ или 4 990
    Агент
    +7 (912) 073-05-67
    Начать чат с агентом
    Похожие предложения
    Помещение свободного назначения в Ямало-Ненецкий АО, Новый Уренгой ... - Фото 1
    Помещение свободного назначения в Ямало-Ненецкий АО, Новый Уренгой ... - Фото 2
    К аренде предлагается отдельно стоящее здание общей площадью 480 кв.м., действующая столовая. Объект сдается как готовый бизнес с полным комплектом технологического оборудования и производственной вытяжкой, что позволяет новому оператору начать работу...
    • 1/1 эт.
    450 000 Р
    Агент
    +7 (919) Показать номер
    Посмотреть контакты
    Помещение свободного назначения в Санкт-Петербург Дегтярная ул., 5-7 ... - Фото 1
    Помещение свободного назначения в Санкт-Петербург Дегтярная ул., 5-7 ... - Фото 2
    Предлагаем в аренду помещение под офис компании, шоу-рум, творческую студию, производство, учебный центр в центральном районе города.В пешей доступности от станции метро Площадь Восстания .Инфраструктура и коммуникации:*Пожарная сигнализация для обеспечения...
    • 2/5 эт.
    457 838 Р
    Агент
    +7 (911) Показать номер
    Посмотреть контакты
    Помещение свободного назначения в Санкт-Петербург Невский просп., 173 ... - Фото 1
    Помещение свободного назначения в Санкт-Петербург Невский просп., 173 ... - Фото 2
    Код объекта: 1927322.Сдаётся премиальное помещение на Невском проспектеПлощадь 183 кв. м. От собственника Идеальная витрина для вашего бизнеса на главной улице города Уникальное предложение для тех, кто ценит престиж, потоки клиентов и готов вывести свой...
    • 1/5 эт.
    450 000 Р
    Агент
    +7 (911) Показать номер
    Посмотреть контакты
    Помещение свободного назначения в Самарская область, Самара ... - Фото 1
    Помещение свободного назначения в Самарская область, Самара ... - Фото 2
    Арт.Аренда помещения свободного назначения в Октябрьском районе по адресу: г. Самара, ново-садовая, 36, в границах улиц ЧелюскинцевОгромный транспортный и пешеходный трафики.Общая площадь: 130,5 кв.м. Возможно арендовать половину площади.Этаж/ этажность:...
    • 1/9 эт.
    455 000 Р
    Агент
    +7 (989) Показать номер
    Посмотреть контакты
    Помещение свободного назначения (74 м) - Фото 1
    Помещение свободного назначения (74 м) - Фото 2
    ID 57332 Предлагаю в аренду ПСН площадью 74 масположенное на первом этаже многоэтажного жилого дома входящего в состав ЖК Оранж парк. Помещение с двумя отдельными входами, зальной планировки, с отделкой. Все коммуникации в наличии, электрическая мощность...
    • 1/33 эт.
    440 000 Р
    Агент
    +7 (965) Показать номер
    Посмотреть контакты

    Не нашли подходящего объявления?

    Оставьте заявку, и наши риэлторы подберут псн в районе Ноябрьска

    (0)